1166 SE Preston Ln, Port St. Lucie, FL 34983
1166 SE Preston Ln, Port St. Lucie, FL 34983
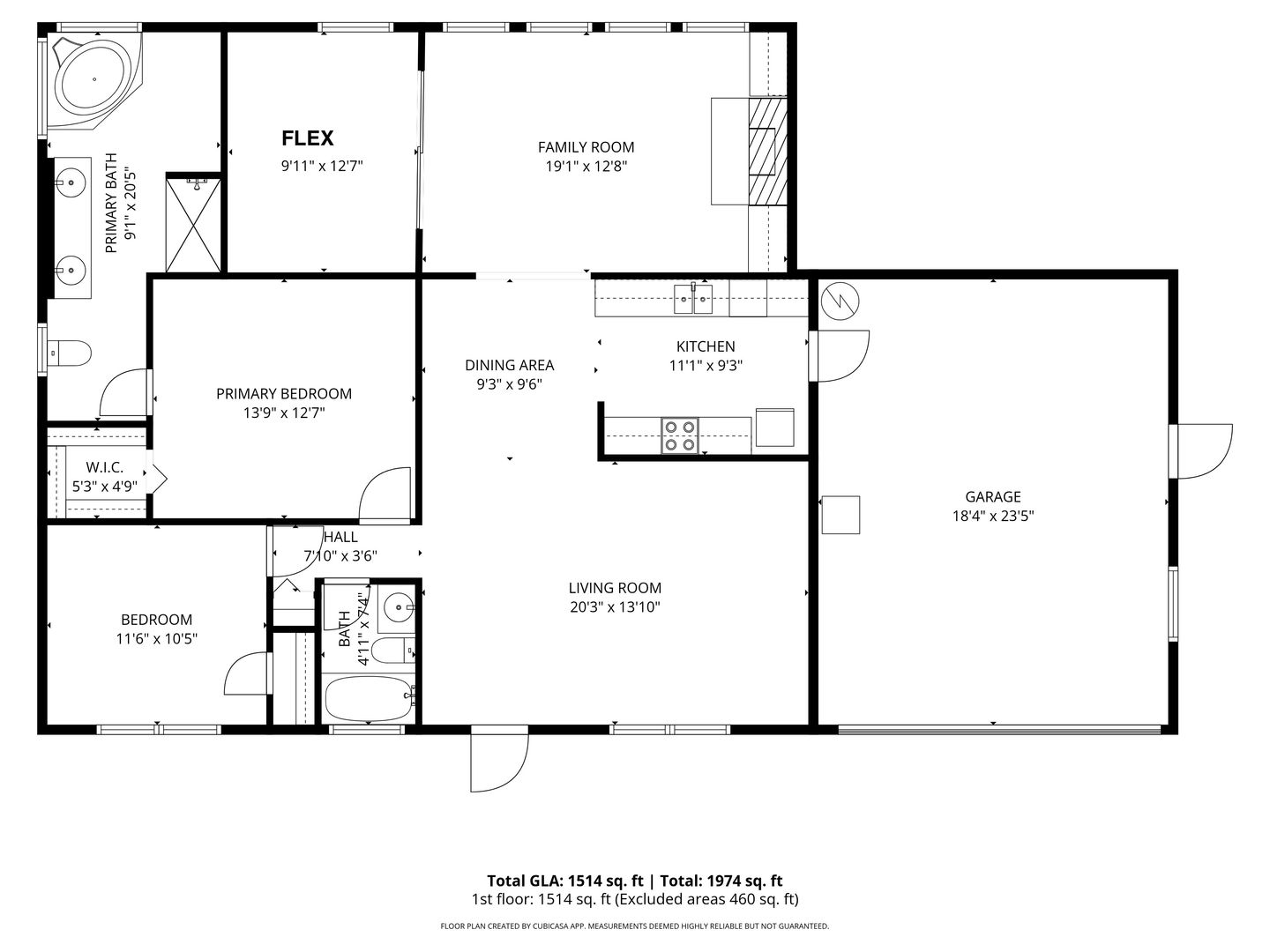
Charming 2-bedroom, 2-bath single-family home located in the heart of Port St. Lucie! This well-laid-out floor plan offers a spacious living room, separate dining area, and a functional kitchen with ample cabinet space. A flex room and large family room provide flexible living options—perfect for a home office, playroom, or additional entertaining space. The primary suite features a private bath, with an additional bedroom offer comfortable accommodations. Enjoy a generous backyard on a .23-acre lot, ideal for outdoor living. The home also includes a 2-car garage and extended driveway for additional parking. Conveniently located near shopping, dining, schools, and major roadways. This property offers space, versatility, and great value
For Showings call
Michele Lee Scherger, Broker Pinnacle Real Estate Group
For Showings call
Michele Lee Scherger, Broker Pinnacle Real Estate Group
Contact us:















































